Australia Post Flagship/Pop-Up

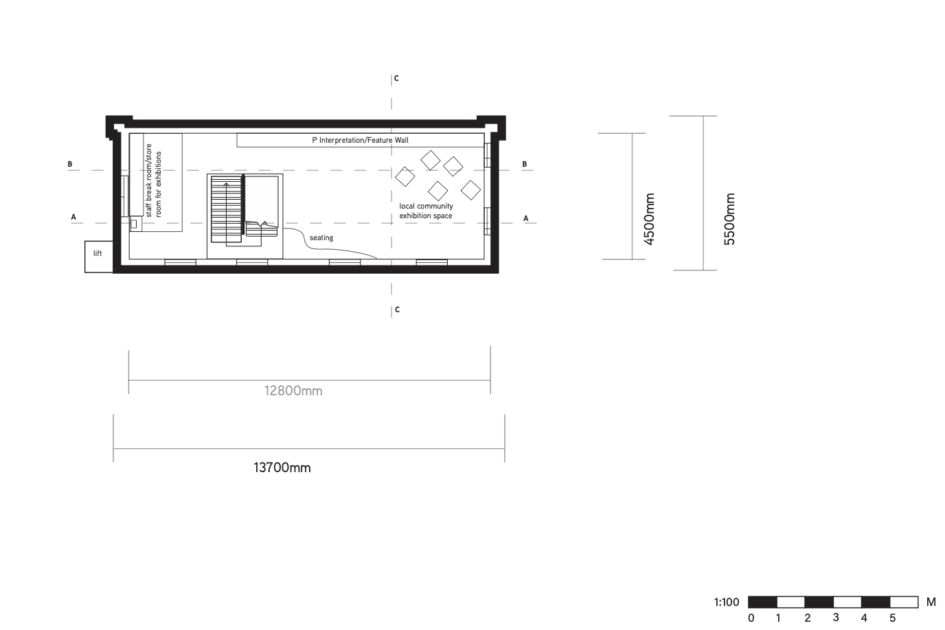
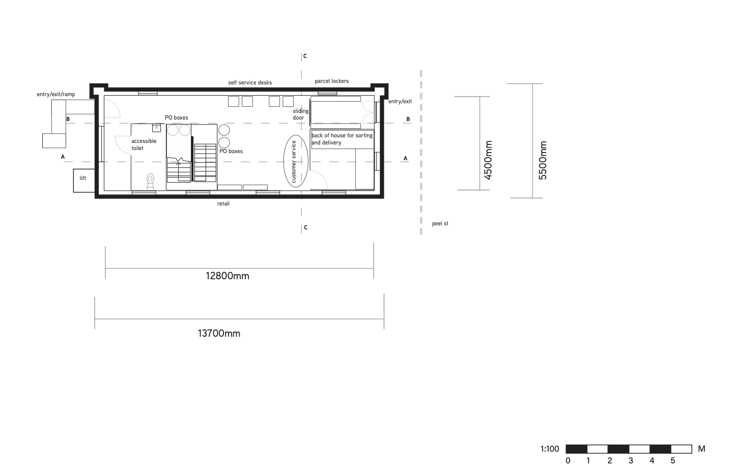
As part of my Australia Post flagship brief, I developed a concept that seamlessly blends brand identity with sustainability-driven innovation. The project focused on creating a visually striking and environmentally conscious flagship experience that reflects Australia Post’s commitment to a greener future. Using Adobe platforms, I crafted a cohesive design system that integrates sustainable materials, digital accessibility, and community engagement - positioning the flagship as both a retail hub and a symbol of progress.

Previous
Previous

Morning Sweet Treats